Logo Holidayhome.com Logo Holidayhome.com
  • Aktuell & verlässlich
  • Direkt buchen
  • Günstige Preise

282294

|
Auf Karte ansehen
282294
282294
282294
+ 19 Fotos
282294
€108,41 Mindestpreis pro Nacht

Niedrigpreisgarantie!

Haben Sie eine Frage zu diesem Ferienhaus?

Kontaktieren Sie uns

  • Geschirrspüler
  • Garten
  • Waschmaschine
  • WLAN
  • Vriezer
  • Grill
  • Backofen / Mikrowelle
  • Dusche
Alle Einrichtungen

Beschreibung

Ferienhaus in Damp mit Schwimmbecken

TOP Ausstattung, Strandnähe, ruhig gelegen am Kurwald, großer Garten, WLAN 100.000 kbit/s , 84 qm bis 5 Pers., Badelandschaft, PKW-Stellplatz am Haus, Kamin, 2 x TV in HD

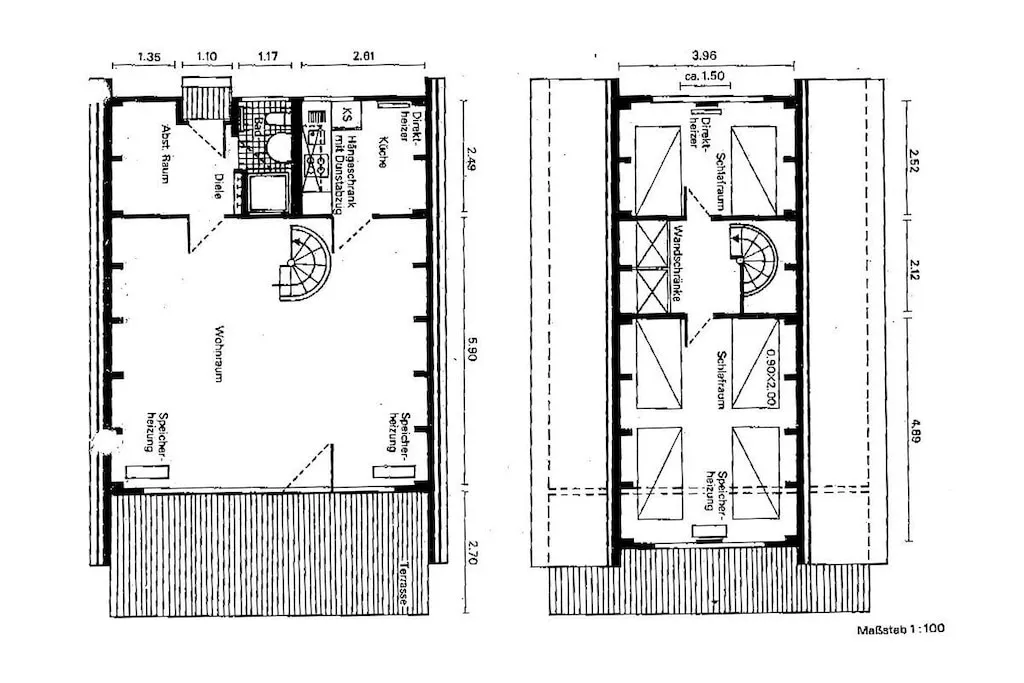
Das 84 qm große Nichtraucher-/ Nurdachhaus (größer als viele andere Zelt-Nurdachhäuser in Damp) in sehr ruhiger Lage direkt am Kurwald (Gartentor zum 20m entfernten Kurwald vorhanden) im Ostsee Resort Damp bietet mit 550 qm auch im Garten alle Freiheiten. Hier stehen Ihnen Sonnenliegen, dazugehörige Gartenmöbel, eine überdachte Terrasse sowie eine zweite angelegte Terrasse im Garten mit Grill und Sonnenschirm zur Verfügung. Ein Strandkorb lädt zum Entspannen ein. Eine Sandkiste, Rutsche, Bobbycar und Dreirad fehlen ebenfalls nicht für die kleinen Racker. Das Gartenhaus mit einem Fahrrad für das tägliche Brötchen holen und Bollerwagen für die Strandbesuche ermöglicht Ihnen auch den Unterstand Ihrer Fahrräder.

Die komfortable Ausstattung bietet 5 Personen einen nahezu wunschlosen Urlaub. Ein eigener Parkplatz direkt vor der Haustür erleichtert von Beginn an den Urlaub.
Ein HDTV 40 Zoll Flachbildschirm (FULL-HD/ Sat-Anschluss) inkl. DVD-Player und Blu-Ray-Player im Erdgeschoß sowie Stereoanlage inkl. Docking-Station und USB-Anschluß 'runden' das helle Wohnzimmer ab. Das Ferienhaus hat einen kostenfreien WLAN-Anschluss mit 100.000 kbit/s!

Neben der technischen Unterhaltung bietet das Haus eine gemütliche Essecke und ein 3er und 2er Leder-Sofa, Sessel und Hocker. Das Wohnzimmer wird abgerundet durch den stilvollen Kaminofen mit Büchern und Spielen zum Entspannen. Holz können Sie im nah gelegenen Edeka-Markt beziehen. Im Erdgeschoss ist neben einem Flur, ein Bad mit WC und Dusche sowie einer voll ausgestatteten Küche mit Kühlschrank. Hier finden Sie Gefrierfach, Geschirrspüler, Waschmaschine, Backofen, Herd inkl. Ceranfeld, Mikrowelle, Toaster, Wasserkocher, Mixer, Filter-Kaffeemaschine sowie Kaffee-Padmaschine, Waffeleisen, Indoor-Grill usw.

Es stehen Ihnen zudem ein Kinderhochstuhl und Baby-Reisebett zur Verfügung.

Im Obergeschoss befinden sich Schlafräume, die beide mit Fliegengittern ausgestattet sind, für 2 und für 3 Personen (ein Babybett kann auf Anfrage aufgestellt werden). Alle Matratzen sind mit Schonern versehen. 2 Matratzen mit Härtegrad 2,5 (= hart bis mittel) und die anderen entsprechen Härtegrad 1,5 (= weich bis mittel). Das Schlafzimmer '2' ist zusätzlich mit einem HD-TV Flachbildschirm ausgerüstet. Im sehr großen 2. Schlafraum finden Sie eine Spiel-Ecke für die Kinder; bestückt mit Spielen und Büchern für alle Altersklassen.

Das gesamte Haus ist mit wischbaren Fußböden ausgelegt und dadurch sehr pflegeleicht. Es befinden sich zusätzlich Teppichläufer im Haus. Das Haus ist komplett mit Rauchmeldern ausgestattet und Steckdosen mit nachgerüsteten Kindersicherungen versehen.
Sie dürfen bis zu 2 Hunde gegen Gebühr mitbringen. Das Grundstück ist größtenteils eingezäunt. Zusätzlich steht ein mobiler 25 m Hundezaun zur Verfügung.

Das Ferienhaus wird durch Öko-Strom betrieben und liegt direkt am Damper Kurwald (15 m), der Ihnen Wald-Spaziergänge und Jogging-/ Nordic Walking-Ausflüge ermöglicht. Der nah gelegene Ostsee-Sandstrand ist (ca. 900 m) zu Fuß in 10 Minuten über den anliegenden Deich einfach zu erreichen und ist in der Sommersaison DLRG überwacht.

Im verkehrsberuhigtem Ort Damp finden Sie alle Annehmlichkeiten für Ihren Urlaub, die Sie direkt zu Fuß erreichen können, wie z.B. Bowling-und Kegel-Center, Fun- und Sport-Center inkl. Kletterturm, Inliner-Bahn, Kinder-Betreuung, Indoor-Beach-Volleyball, Squash, Tennis-Plätze sowie Kinderspielplatz, Mini-Golf, Wasser-Ski-Anlage, Surf-und Segel-Schule, Abenteuer-Golf, Fahrrad-Verleih, Promenade / Einkaufsmeile, Restaurants, Krankenhaus, Yachthafen, Schifffahrt, DLRG-Strand, Hunde-Strand, FKK-Strand, Vital-Center inkl. Sauna, Wellness-Center und Schwimmbad und Fitness-Center und vieles, vieles mehr...wie einem nah gelegenen Reiterhof in ca. 1,5 km Entfernung.

Das neue Damper Entdeckerbad für Kinder und Erwachsene eröffnet. Neben einem Kleinkinderbadeland finden Sie ein großes Schwimmbecken in abstrahierter Form der Ostsee und eine Eventrutsche sowie Außenschwimmbad und Saunalandschaften, welches in unter 5 Minuten zu Fuß zu erreichen ist!

Einige Höhepunkte des neuen Entdeckerbades:
- 97 Meter Eventrutsche mit Lichtprojektion und LED-Effekten
- 67 Meter lange Speedrutsche/ Neu seit Winter 2016/2017
- Sauna-Wikingerdorf mit Event-, Aufguss- und Kräutersaunen
- Dreidimensionales, laserprojiziertes Polarlicht von der Hallendecke
- Erlebnis-Kinderbecken zum Experimentieren und Erforschen
- 29-30 °C Innenbecken in abstrahierter Form der Ostsee
- 34 °C Außenbecken
- Erlebnisgastronomie für Bad- und Saunabesucher
- Traumhafter Ausblick auf die 'echte' Ostsee
- Entdecker-, Science- und Eventcubes

- zahlreiche Exponate

Das Konzept des neuen Bades ist weit über die Grenzen Schleswig-Holsteins hinaus einzigartig. Es thematisiert Nordeuropa, nordische Kulturen und die Wikinger. Die gesamte Familie geht hier mit einer ausgewogenen Mischung aus Unterhaltung und spielerischem Lernen auf Erkundungsreise. Für kleine und große Gäste gibt es in drei Ergebnisräumen vieles zu erleben und zu entdecken: Es gibt ein Kino, einen Bereich mit naturwissenschaftlichen Experimenten zum Ausprobieren sowie Touchscreens-Quiz und -Spiele zur Ostsee und Wikingerzeit.

Schauen Sie gerne auf die Internetseiten www.entdeckerbad.de und www.ostsee-resort-damp.de und entdecken noch viel mehr vom Entdeckerbad und dem Ostseebad Damp!

Lassen Sie sich zudem von der wunderschönen Ostsee-Halbinsel Schwansen zu erholsamen Spaziergängen und Radtouren verleiten. Ausflüge in die nah gelegenen Küsten- bzw. Fischerstädten nach Kappeln (u.a. Drehort Landarzt, Museums-Dampfeisenbahn,....) und Eckernförde (15-20 km) laden zum Bummeln ein.

Die nahe gelegenen Orte Maasholm (wunderschönes kleines Fischerdorf), Arnis (kleinste Stadt in Deutschland) und der Vergnügungspark Tolk (Tolk-Schau) sowie Schleswig/ Haithabu (Wikinger Museum) sind weitere in der Umgebung befindliche Ausflugsziele.

Für begeisterte Angler bietet die nahe gelegene Ostsee für Fliegen-Fischen und Brandungsangeln Top-Bedingungen. Gerne geben wir Ihnen Tipps für die besten Buchten vom Fachmann. Durch den Molen-Bereich (außerhalb des Schwimmbereiches!!) ist Damp ein beliebter Spot/ Ort für Wellenreiter und Kite-Surfer.

Weitere Ausflugsziele finden Sie in unseren Prospekten vor Ort wie auch in unserer Informationsmappe über das Haus. Unser Ferienhaus steht am Anreisetag ab 16.00 Uhr zur Verfügung und muss am Abreisetag bis 10.00 Uhr mit Abgabe der Schlüssel übergeben werden.

Wichtige Informationen
Beliebte Filter WLAN
Typ Ferienhaus Ferienhaus
Über das cotage
  • StandortDamp
  • Anreise von 14:00 bis 16:00
  • Abreise 10:00

Ausstattung

Dies macht Ihren Aufenthalt unvergesslich

Einrichtungen
Ausstattung
  • Backofen / Mikrowelle
  • Dusche
  • Fernseher
  • Garten
  • Geschirrspüler
  • Grill
  • Kamin
  • Kühlschrank
  • Vriezer
  • WLAN
  • Waschmaschine
Behinderte
  • Breiter Zugang

Auf der Karte

Alle Informationen für die richtige Entscheidung!

Das Wetter
Weather Icon 1°C leichter Eisregen
Minimum 1°C
Maximum 1°C
Nächste Tage
  • Do. 12 /0° 100%
  • Fr. 13 /-1° 100%
  • Sa. 14 -2°/-5° 100%
  • So. 15 -2°/-8° 0%
  • Mo. 16 /-2° 100%

Das Klima in Schweineweide

Das Wetter das ganze Jahr über

Monat Temperatur (°C) Luftfeuchtigkeit (%) Niederschlag (mm)
Januar /-1° 85% 60 mm
Februar /-1° 81% 45 mm
März /1° 78% 45 mm
April 12°/3° 74% 35 mm
Mai 17°/7° 72% 45 mm
Juni 20°/10° 73% 60 mm
Juli 22°/13° 75% 75 mm
August 22°/13° 76% 75 mm
September 18°/10° 79% 60 mm
Oktober 13°/7° 82% 60 mm
November /3° 86% 60 mm
Dezember /0° 86% 60 mm

Häufig gestellte Fragen

Antworten auf die häufigsten Fragen zu dieser Unterkunft

Gibt es WLAN bei 282294?
Ja, diese Unterkunft verfügt über wlan und wlan..
Gibt es eine Klimaanlage in 282294?
Nein, in dieser Unterkunft ist keine Klimaanlage vorhanden.
Hat 282294 eine Badewanne?
Nein, 282294 hat keine Badewanne.
Kann ich mein Auto bei 282294 parken?
Nein, es ist nicht möglich, Ihr Auto auf dem Gelände der Unterkunft zu parken.
Kann ich bei 282294 schwimmen?
Nein, es gibt keine Schwimmmöglichkeiten bei 282294.

Weitere Unterkünfte in der Umgebung

Das könnte Ihnen auch gefallen

Direkt buchbar
Baltic Village Damp - Comforthaus 2 Pers
Baltic Village Damp - Comforthaus 2 Pers
WLAN Ferienhaus Backofen / Mikrowelle Sauna
Direkt buchbar
Baltic Village Damp - Comforthaus 4 Pers
Baltic Village Damp - Comforthaus 4 Pers
WLAN Ferienhaus Backofen / Mikrowelle Sauna
Direkt buchbar
Baltic Village Damp - Comforthaus 3 Pers
Baltic Village Damp - Comforthaus 3 Pers
WLAN Ferienhaus Backofen / Mikrowelle Sauna
Direkt buchbar
Baltic Village Damp - Premiumhaus 2 Pers
Baltic Village Damp - Premiumhaus 2 Pers
WLAN Ferienhaus Backofen / Mikrowelle Sauna
Direkt buchbar
Baltic Village Damp - Premiumhaus 4Pers
Baltic Village Damp - Premiumhaus 4Pers
WLAN Ferienhaus Backofen / Mikrowelle Sauna
Direkt buchbar
Baltic Village Damp - Premiumhaus 3 Pers
Baltic Village Damp - Premiumhaus 3 Pers
WLAN Freistehend Backofen / Mikrowelle Sauna
Direkt buchbar
Baltic Village Damp - VIP Haus 2Pers
Baltic Village Damp - VIP Haus 2Pers
WLAN Ferienhaus Backofen / Mikrowelle Whirlpool
Direkt buchbar
Baltic Village Damp - VIP Haus 3 Pers
Baltic Village Damp - VIP Haus 3 Pers
WLAN Freistehend Backofen / Mikrowelle Whirlpool
Orte in der Nähe
282294

Deutschland - Schleswig-Holstein - Damp

Fotoalbum
Filtern:
Badezimmer
282294-Nicht zugeordnet
282294-Nicht zugeordnet
282294-Nicht zugeordnet
282294-Nicht zugeordnet
282294-Nicht zugeordnet
282294-Nicht zugeordnet
282294-Nicht zugeordnet
282294-Nicht zugeordnet
282294-Nicht zugeordnet
282294-Nicht zugeordnet
282294-Nicht zugeordnet
282294-Nicht zugeordnet
282294-Nicht zugeordnet
282294-Nicht zugeordnet
282294-Nicht zugeordnet
282294-Nicht zugeordnet
282294-Nicht zugeordnet
282294-Nicht zugeordnet
282294-Nicht zugeordnet
282294-Nicht zugeordnet
282294-Nicht zugeordnet
282294-Nicht zugeordnet
1/ 22